36,00 €
Versandkostenfrei per Post / DHL
auf Lager, Lieferzeit 2-4 Werktage
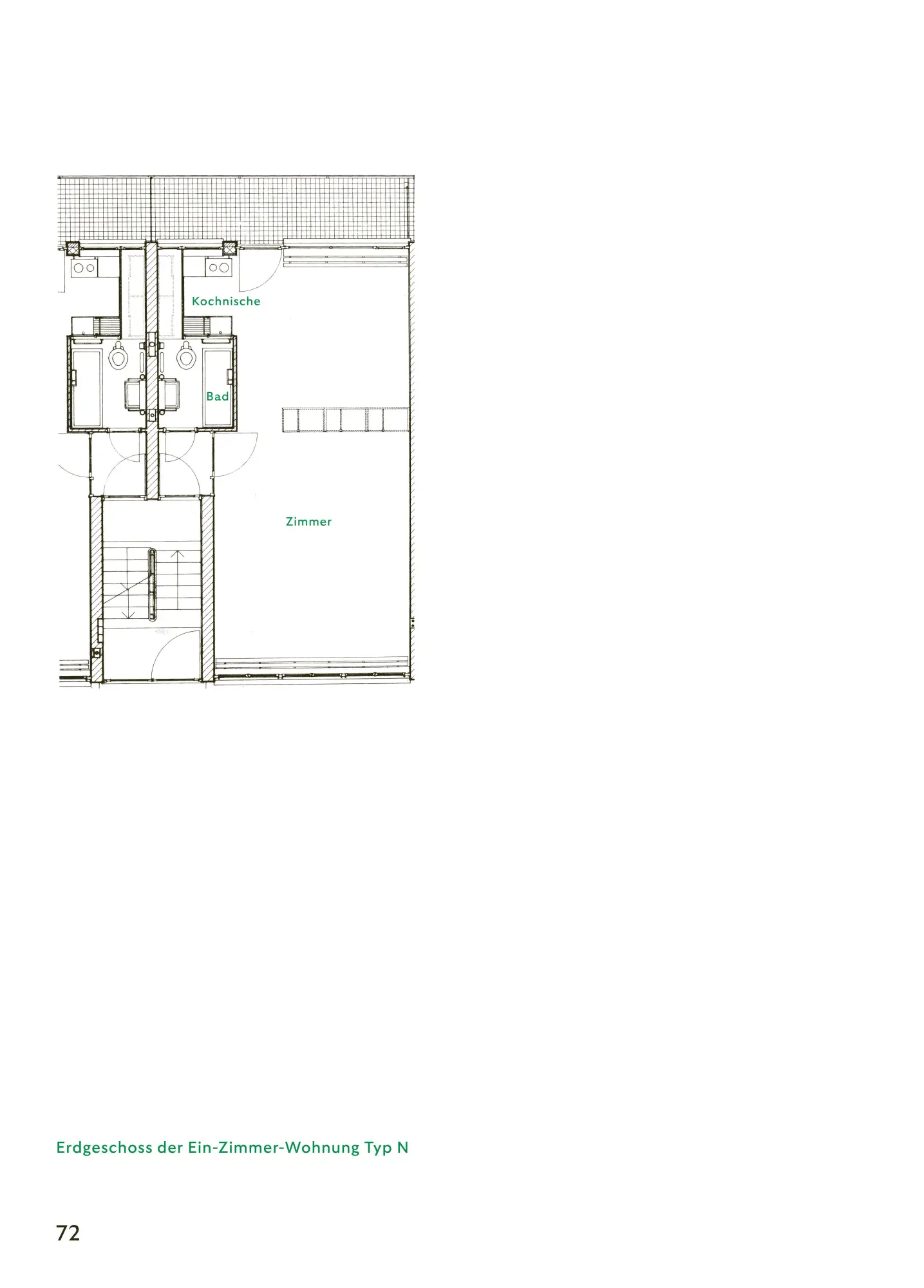
"Living here is like life on a permanent holiday," reads an advertisement, published in 1932, for the newly inaugurated Werkbund housing development Neubühl in Zurich. Even today, with its intelligently conceived outdoor spaces, residential infrastructure, and compact, rational floor plans, it remains a significant living example of the New Building (Neues Bauen) in Switzerland. It is still so beloved by its residents that many spend most of their lives there. This is made possible by the skillful integration of a variety of housing types-from small studios to six-room townhouses. In their book, the editors compilecontributions on the history, typology, and significance of the housing development, supplemented by portraits of current female residents, to illuminate their lived environment and personal experiences.
With a contribution by Nina Hüppi
- Women as users and protagonists of modernist architecture
- Interviews with contemporary residents as a research and teaching method
- Shows the discrepancy between male construction and female use
"Living here is like life on a permanent holiday," reads an advertisement, published in 1932, for the newly inaugurated Werkbund housing development Neubühl in Zurich. Even today, with its intelligently conceived outdoor spaces, residential infrastructure, and compact, rational floor plans, it remains a significant living example of the New Building (Neues Bauen) in Switzerland. It is still so beloved by its residents that many spend most of their lives there. This is made possible by the skillful integration of a variety of housing types-from small studios to six-room townhouses. In their book, the editors compilecontributions on the history, typology, and significance of the housing development, supplemented by portraits of current female residents, to illuminate their lived environment and personal experiences.
With a contribution by Nina Hüppi
- Women as users and protagonists of modernist architecture
- Interviews with contemporary residents as a research and teaching method
- Shows the discrepancy between male construction and female use
Sandra König studied architecture in Berlin and worked as an assistant stage designer in Berlin and Hamburg before founding her own architectural practice. She has lived in Zurich since 2007, and has been a joint owner of AMJGS Architektur since 2012. She is active in associations and networks dedicated to the visibility of women in the design professions, and serves on the executive board of the Swiss Werkbund.
Henriette Lutz studied architecture at the Technical University in Munich and earned a MAS in the history and theory of architecture from the ETH Zurich. She is active as an independent architect in Zurich, and is a member of the leadership team of the Institute for Urbanism, Architecture and Construction at the Bern University of Applied Sciences. She also serves on the executive board of créatrices and is a cofounder of Research Walkers.
Ulrike Schröer studied architecture in Berlin and earned her doctorate at the ETH Zurich. She is active in Basel as an independent architect, and has been a professor at the Bern University of Applied Sciences since 2011, where she is a member of the leadership team of the Institute for Urbanism, Architecture and Construction. She is a member of the foundation board of the Stiftung Visarte Künstlerhaus and serves on the executive board of the Baselbieter Heimatschutz.
| Erscheinungsjahr: | 2025 |
|---|---|
| Genre: | Geisteswissenschaften, Kunst, Musik |
| Rubrik: | Kunst & Musik |
| Thema: | Architektur |
| Medium: | Taschenbuch |
| Inhalt: |
200 S.
70 s/w Illustr. 70 b/w ill. |
| ISBN-13: | 9783986121990 |
| ISBN-10: | 3986121994 |
| Sprache: | Deutsch |
| Einband: | Klappenbroschur |
| Redaktion: |
König, Sandra
Lutz, Henriette Schröer, Ulrike |
| Herausgeber: | Sandra König/Henriette Lutz/Ulrike Schröer |
| Hersteller: |
JOVIS Verlag
Jovis Verlag GmbH |
| Verantwortliche Person für die EU: | Walter de Gruyter GmbH, De Gruyter GmbH, Genthiner Str. 13, D-10785 Berlin, productsafety@degruyterbrill.com |
| Abbildungen: | 70 b/w illustrations |
| Maße: | 229 x 164 x 17 mm |
| Von/Mit: | Sandra König (u. a.) |
| Erscheinungsdatum: | 17.11.2025 |
| Gewicht: | 0,504 kg |